Bilocale in vendita

Seriate, Via granger
€ 105.000
Prezzo aggiornato
2 locali 2 locali
57 Mq 57 Mq
1 bagno 1 bagno

Bilocale in vendita

Seriate, Via granger

Descrizione annuncio

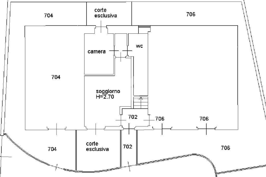
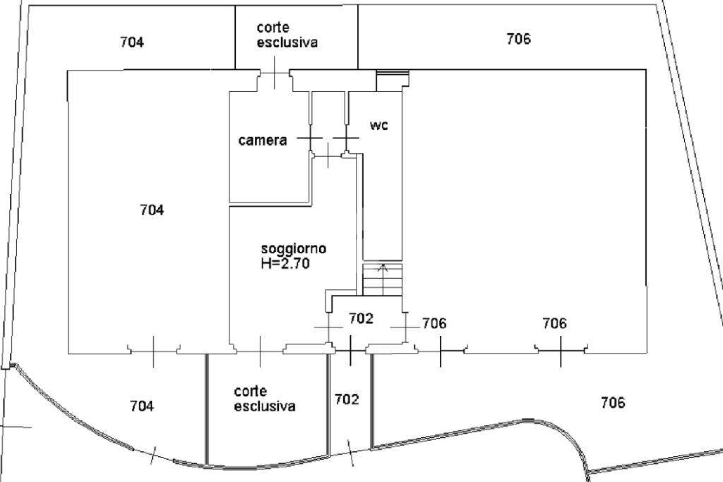
A Seriate, in zona comoda e residenziale proponiamo un appartamento bilocale al piano terra con doppio giardino piastrellato.

L'appartamento è posto in una piccola palazzina di recente costruzione, l'ingresso si apre subito sulla zona giorno in open space con angolo cottura, questo ambiente gode di accesso esclusivo al giardino di proprietà interamente piastrellato.

La zona notte, è composta da un bagno finestrato dotato di vasca e la camera matrimoniale anch'essa con accesso ad un secondo giardino di proprietà esclusiva.

Completa il disimpegno della zona notte un pratico armadio a muro con locale lavanderia.

L'appartamento viene venduto parzialmente arredato con un posto auto di proprietà all'interno del cortile condominiale.

La soluzione si presta come prima casa per single o giovani coppie e anche come ottimo investimento, viste le poche spese condominiali e la vicinanza a tutti i principali servizi.

Mostra tutto

Nelle vicinanze

Trasporto pubblico Trasporto pubblico
Seriate
Seriate
890 m
1030
1030
330 m
69
69
340 m
Ricariche auto elettriche Ricariche auto elettriche
Seriate Partigiani | EnelX
760 m
Seriate Europa | EnelX
990 m
Eneldrive Esselunga della Celadina
1,3 Km
Jaguar Land Rover Iperauto Bergamo
1,7 Km
Seriate Viale Lombardia | EnelX
1,9 Km
Scuole Scuole
Scuole
270 m
I.C. A. Moro
270 m
Istituto superiore Ettore Majorana
690 m
Scuola Edile
1,2 Km
Istituto Comprensivo De Amicis
1,6 Km
Farmacia Farmacia
Farmacia
970 m
Farmacia Nuova Seriate
1,0 Km
Celadina
1,5 Km
Iper Farma
2,1 Km
Farmacia Clementina
2,4 Km
Ospedali Ospedali
Ospedale Bolognini
680 m
Supermercati Supermercati
Unes
970 m
Legler Market
1,0 Km
Lidl
1,3 Km
Esselunga della Celadina
1,3 Km
MD
2,0 Km
Negozi Negozi
Victoria's Secret
1,9 Km
Negozi
2,1 Km
Milano Moda
2,2 Km
Bergamo Divise
2,8 Km
Panificio Marchesi
2,9 Km
Bar Bar
Bar
820 m
#Quantobasta Bar and more
1,1 Km
Bar Macchiavelli
1,1 Km
Civico 22
1,4 Km
Bar Papillon
1,5 Km
Ristoranti Ristoranti
Pizza Planet di Aceti Carmen
390 m
Ristoranti
430 m
Da Gina
1,3 Km
Da Franco
1,3 Km
Pizzeria Il Cantuccio
1,4 Km
Mostra tutto

Caratteristiche

Rif.:
61143882
Piano:
Terra con giardino di 2
Totale piani:
2
Posti auto:
1
Camere da letto:
1
Arredamento:
Parziale
Mostra tutto
Prezzo Prezzo
€ 105.000
Rata mutuo Rata mutuo
€ 495 / mese
Spese annue Spese annue
€ 500
Proponi il tuo prezzoProponi il tuo prezzo
Immobile valutato con T·Valuta

Classe Energetica

E
E
E
E
E
E
E
E
E
EP globale non rinnovabile:
134.40 kW h/m² anno
EP globale rinnovabile:
134.40 kW h/m² anno
EP invernale del fabbricato:
EP estiva del fabbricato:
Anno di costruzione:
2008
Riscaldamento:
Autonomo
Tipo impianto:
A radiatori
Tipo alimentazione:
Metano

Prezzo ridotto di €1 (5%%)

Ti interessa visionare l'immobile?

Fissa un appuntamento  Fissa un appuntamento

Richiedi informazioni

Clicca su Leggi per aprire l'informativa
* Questi campi sono obbligatori

Calcola il tuo mutuo

Semplice e senza impegno
Anticipo

( % )
Mutuo

( % )

pochi semplici passi

inserisci i tuoi dati
Questionario completato
Grazie per aver richiesto un appuntamento senza impegno con un nostro Consulente del Credito e Assicurativo.

Hai inserito correttamente tutti i dati necessari e a breve riceverai una e-mail con un link da convalidare per inviare i tuoi dati.
Affiliato
Agenzia Imm.re Grassobbio Srl
Viale Papa Giovanni XXIII, 31 24050 Grassobbio (BG)

Il nostro staff


  • Claudia Meni
    Affiliata

  • Jessica Baggi
    Coordinatrice

  • Samuele Bergamelli
    Affiliato

  • Jacopo Melis
    Collaboratore

  • Alessia Ratti
    Collaboratrice
Viale Papa Giovanni XXIII, 31 24050 Grassobbio (BG)
Zona: Seriate Ovest-Grassobbio
Mostra su mappa
Orari: Dal Lunedì al Venerdì 09.00 - 12.30 14.30 - 20.00 Sabato09.00 - 18.00 Domenica su appuntamento.
Affiliato
Agenzia Imm.re Grassobbio Srl
Viale Papa Giovanni XXIII, 31 24050 Grassobbio (BG)

2026 Tecnocasa Franchising S.p.A. - P. IVA 08365160152 - Via Monte Bianco 60/A 20089 Rozzano (MI). Ogni agenzia ha un proprio titolare ed è autonoma. Privacy policy | Policy utilizzo | Cookie policy