Trilocale in vendita

Seriate, Via Italia
€ 145.000
3 locali 3 locali
86 Mq 86 Mq
1 bagno 1 bagno

Trilocale in vendita

Seriate, Via Italia

Descrizione annuncio

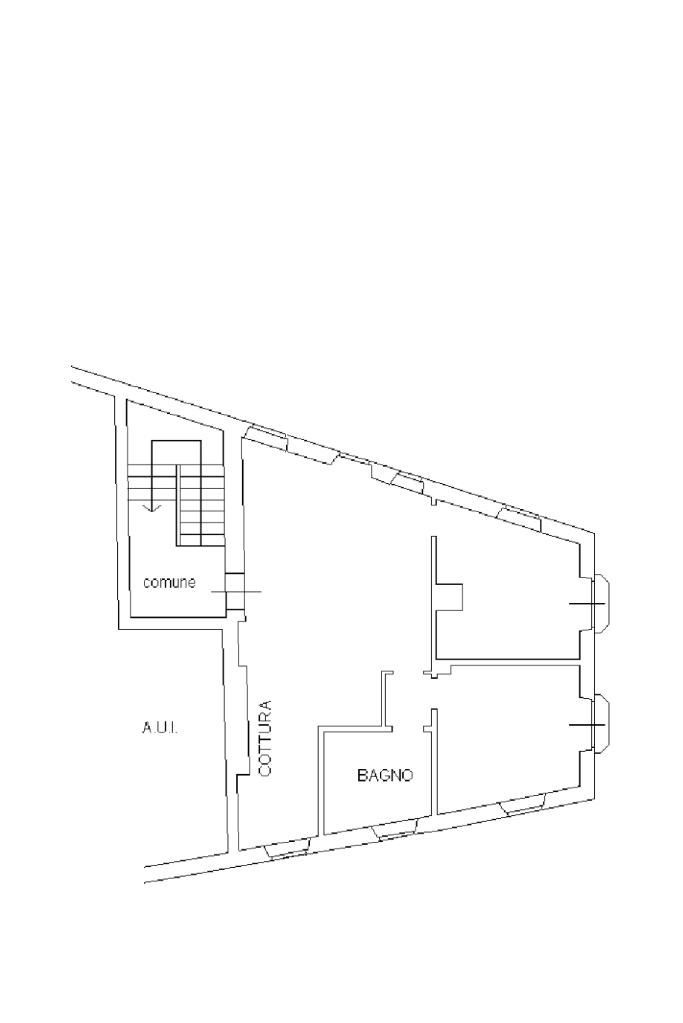
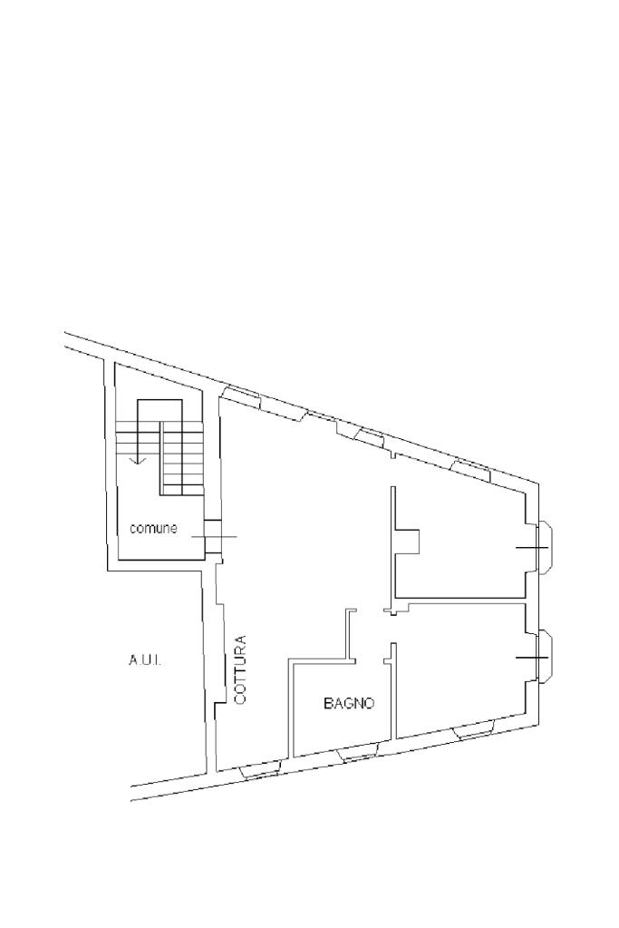
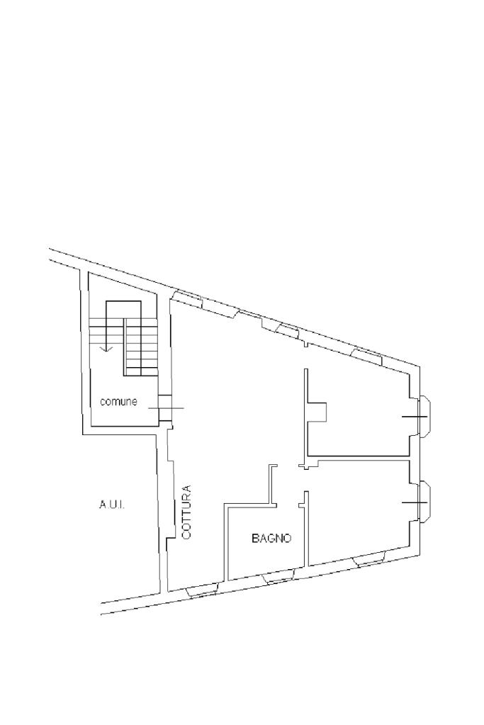
A Seriate, in zona comoda ai servizi principali proponiamo in una piccola palazzina di poche unità senza spese condominiali, un appartamento trilocale situato al secondo piano, ideale per chi è alla ricerca di tranquillità, indipendenza e comfort quotidiano.

L’abitazione, ristrutturata nei primi anni 2000, si presenta in ottimo stato conservativo e offre spazi ben distribuiti e funzionali.


L’ingresso si apre su un ampio soggiorno, particolarmente luminoso grazie alle grandi finestre, con un accogliente angolo cottura a vista che rende l’ambiente perfetto per la vita quotidiana e per momenti di convivialità. Il tutto impreziosito da suggestive travi a vista in legno, che conferiscono all’ambiente un’atmosfera calda, accogliente e dal sapore rustico ma elegante

La zona notte si compone di due camere da letto, entrambe di buona metratura, adatte sia per una famiglia che per chi desidera una stanza aggiuntiva da adibire a studio o stanza per gli ospiti.
Il bagno, finestrato, è dotato di doccia ed è stato anch’esso ristrutturato in linea con il resto dell’abitazione.

Completano la proprietà un posto auto ad uso esclusivo al piano terra, comodo e facilmente accessibile, e la tranquillità di vivere in un contesto senza spese comuni, dove ogni unità mantiene la propria autonomia.

Un'ottima soluzione per chi cerca un appartamento pronto da abitare, in un contesto comodo e vicino a tutti i principali servizi.

Contattaci per maggiori informazioni o per prenotare una visita: questa casa potrebbe essere la tua nuova opportunità.

Mostra tutto

Nelle vicinanze

Trasporto pubblico Trasporto pubblico
Seriate
Seriate
380 m
Bergamo Borgo Palazzo
Bergamo Borgo Palazzo
3,0 Km
Bergamo Trasporti
Bergamo Trasporti
80 m
144
144
100 m
Ricariche auto elettriche Ricariche auto elettriche
Seriate Partigiani | EnelX
330 m
Eneldrive Esselunga della Celadina
880 m
Seriate Europa | EnelX
960 m
Seriate Viale Lombardia | EnelX
1,1 Km
Jaguar Land Rover Iperauto Bergamo
1,4 Km
Scuole Scuole
Istituto superiore Ettore Majorana
380 m
Scuola Edile
500 m
Scuole
600 m
I.C. A. Moro
600 m
Istituto Comprensivo De Amicis
1,1 Km
Farmacia Farmacia
Farmacia
110 m
Farmacia Nuova Seriate
460 m
Celadina
960 m
Farmacia Doneda
1,9 Km
Iper Farma
1,9 Km
Ospedali Ospedali
Ospedale Bolognini
230 m
Supermercati Supermercati
Legler Market
430 m
Lidl
610 m
Unes
870 m
Esselunga della Celadina
870 m
Italmark
1,4 Km
Negozi Negozi
Milano Moda
1,7 Km
Panetteria Del Borgo
2,2 Km
Bergamo Divise
2,6 Km
Panificio Marchesi
2,6 Km
Victoria's Secret
2,7 Km
Bar Bar
Bar
260 m
#Quantobasta Bar and more
510 m
Bar Macchiavelli
770 m
Civico 22
820 m
Bar Papillon
960 m
Ristoranti Ristoranti
Ristoranti
510 m
Pizza Planet di Aceti Carmen
550 m
Pizzeria Il Cantuccio
970 m
Benedetta Passione
1,4 Km
My Wok Sushi
1,4 Km
Mostra tutto

Caratteristiche

Rif.:
61117083
Piano:
2 di 2 (ultimo Piano)
Posti auto:
1
Balconi:
2
Camere da letto:
2
Arredamento:
Parziale
Mostra tutto
Prezzo Prezzo
€ 145.000
Rata mutuo Rata mutuo
€ 684 / mese
Spese annue Spese annue
€ 0
Proponi il tuo prezzoProponi il tuo prezzo
Immobile valutato con T·Valuta

Classe Energetica

G
G
G
G
G
G
G
G
G
EP globale rinnovabile:
305.49 kW h/m² anno
EP invernale del fabbricato:
EP estiva del fabbricato:
Anno di costruzione:
1960
Riscaldamento:
Autonomo
Tipo impianto:
A radiatori
Tipo alimentazione:
Metano

Ti interessa visionare l'immobile?

Fissa un appuntamento  Fissa un appuntamento

Richiedi informazioni

Clicca su Leggi per aprire l'informativa
* Questi campi sono obbligatori

Calcola il tuo mutuo

Semplice e senza impegno
Anticipo

( % )
Mutuo

( % )

pochi semplici passi

inserisci i tuoi dati
Questionario completato
Grazie per aver richiesto un appuntamento senza impegno con un nostro Consulente del Credito e Assicurativo.

Hai inserito correttamente tutti i dati necessari e a breve riceverai una e-mail con un link da convalidare per inviare i tuoi dati.
Affiliato
Agenzia Imm.re Grassobbio Srl
Viale Papa Giovanni XXIII, 31 24050 Grassobbio (BG)

Il nostro staff


  • Claudia Meni
    Affiliata

  • Jessica Baggi
    Coordinatrice

  • Samuele Bergamelli
    Affiliato

  • Jacopo Melis
    Collaboratore

  • Alessia Ratti
    Collaboratrice
Viale Papa Giovanni XXIII, 31 24050 Grassobbio (BG)
Zona: Seriate Ovest-Grassobbio
Mostra su mappa
Orari: Dal Lunedì al Venerdì 09.00 - 12.30 14.30 - 20.00 Sabato09.00 - 18.00 Domenica su appuntamento.
Affiliato
Agenzia Imm.re Grassobbio Srl
Viale Papa Giovanni XXIII, 31 24050 Grassobbio (BG)

2025 Tecnocasa Franchising S.p.A. - P. IVA 08365160152 - Via Monte Bianco 60/A 20089 Rozzano (MI). Ogni agenzia ha un proprio titolare ed è autonoma. Privacy policy | Policy utilizzo | Cookie policy